Дом 61 м2 из сип-панелей №907

Цена строительства от 3 700 000 ₽* * Стоимость не является окончательной
Заявка на консультацию
  • Общая площадь 61 м2
  • Материал стен Каркасно-панельные
  • Количество этажей 1
  • Подвал Нет
  • Мансарда без мансарды
  • Гараж Нет
  • Терраса Да
  • Проживание Круглогодичное
  • Количество комнат 3
  • Количество спален 2
  • Количество санузлов 1
  • Вид проекта дом
  • Застройщик Инженерные решения
  • Отделка фасада Комбинированная
  • Крыша Двускатная
  • Можно купить домокомплект Нет
  • Модульный тип строения Нет
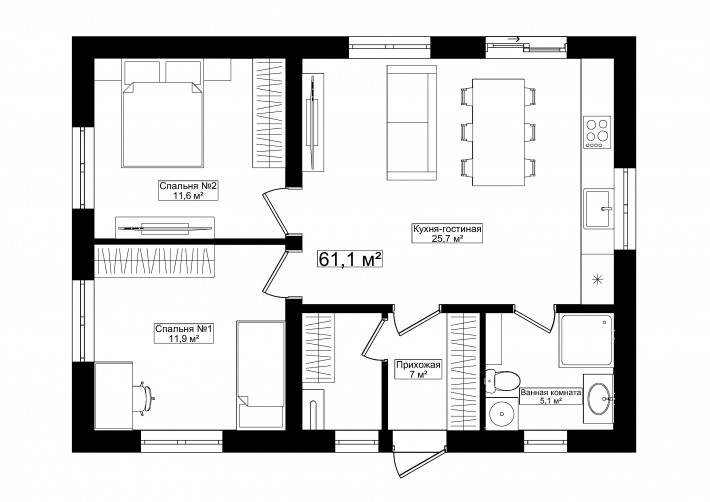
Планировки
Описание проекта

Компактный функциональный одноэтажный дом с оригинальным фасадом и двухскатной кровлей. Имеет две спальни, кухню гостиную с выходом на задний двор, котельную-постирочную, второй санузел можно разместить в котельной постирочной.

Комплектации

Минимальная: 3 700 000 р.

  • Геология, расчет фундамента
  • Фундамент
  • Отмостка конструктивная
  • Плита пола первого этажа
  • Ввод электричества и воды
  • Разводка канализации
  • Несущие стены сип-панель
  • Межкомнатные перегородки
  • Межэтажное перекрытие
  • Кровля
  • Окна

Средняя: 4 650 000 р.

  • Всё из минимальной
  • Разводка водоснабжения
  • Система «теплый пол»
  • Стяжка пола
  • Септик
  • Подшивка карнизов кровли

Полная: 5 450 000 р.

  • Всё из средней
  • Входная дверь с терморазрывом
  • Разводка электрики
  • Внутренняя штукатурка
  • Отделка фасада

Данный дом от компании "Инженерные решения" по технологии газобетон/кирпич. Подробнее

Вас может заинтересовать
Вас может заинтересовать

Выбор местоположения

Задать вопрос / написать нам

E-mail: domgis@mail.ru

Мы свяжемся с Вами в течение дня.

Тех. поддержка
Предмет обращения:
Тукущая страница

Мы свяжемся с Вами в течение дня.

Уведомление
Предмет обращения:
Тукущая страница
Обратный звонок
Обратный звонок
Выберите ваш город
Пожаловаться

Объявление опубликовано.
Изменения сохранены

Период публикации - бессрочный, при условии подтверждения актуальности каждые 50 дней. Уведомления будут отправляться на Вашу электронную почту.

Выберите причину снятия с публикации

Снятые с публикации объявления не участвуют в поиске и недоступны для подробного просмотра.

Для повторной публикации нажмите «Вернуть в публикацию»