ФРИБУР №863

Цена строительства от 6 850 000 ₽* * Стоимость не является окончательной
Заявка на консультацию
  • Общая площадь 94 м2
  • Длина 11.1 м
  • Ширина 6.8 м
  • Материал стен Газобетон/пеноблок
  • Количество этажей 2
  • Подвал Нет
  • Мансарда Имеется
  • Гараж Нет
  • Терраса Нет
  • Проживание Круглогодичное
  • Количество комнат 4
  • Количество спален 3
  • Количество санузлов 2
  • Вид проекта дом
  • Застройщик Симпл хаус
  • Отделка фасада Штукатурка
  • Крыша Двускатная
  • Можно купить домокомплект Нет
  • Модульный тип строения Нет
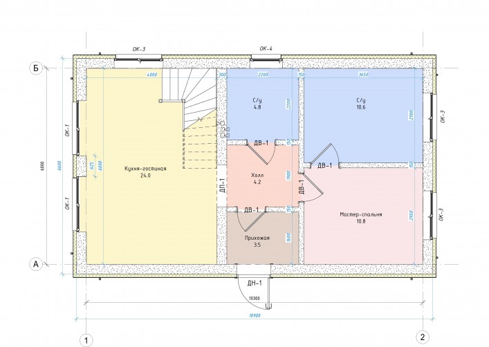
Планировки
Описание проекта

Одноэтажный дом с двускатной крышей, представляет собой классический вариант загородного дома. Двускатная крыша гармонично сочетается с окружающим ландшафтом.

Дом рассчитан на проживание семьи из 4-6 человек.

Объемо-планировочные решения дома вмещают просторную кухню-гостиную с большими панорамными окнами второй свет, мастер-спальню на первом этаже, санузел и прихожую. На втором этаже общее пространство с возможностью расположить две спальни и ванную.

Фасад - декоративная штукатурка

Комплектация STANDART - 6 850 000 р.

Комплектация WHITE BOX - 8 400 000 р.

Фасад - облицовочный кирпич

Комплектация STANDART - 7 300 000 р.

Комплектация WHITE BOX - 8 850 000 р.

Вас может заинтересовать
Вас может заинтересовать

Выбор местоположения

Задать вопрос / написать нам

E-mail: domgis@mail.ru

Мы свяжемся с Вами в течение дня.

Тех. поддержка
Предмет обращения:
Тукущая страница

Мы свяжемся с Вами в течение дня.

Уведомление
Предмет обращения:
Тукущая страница
Обратный звонок
Обратный звонок
Выберите ваш город
Пожаловаться

Объявление опубликовано.
Изменения сохранены

Период публикации - бессрочный, при условии подтверждения актуальности каждые 50 дней. Уведомления будут отправляться на Вашу электронную почту.

Выберите причину снятия с публикации

Снятые с публикации объявления не участвуют в поиске и недоступны для подробного просмотра.

Для повторной публикации нажмите «Вернуть в публикацию»